CAD
Home

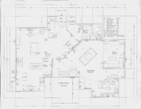
Soon I'll add current views to this page, but for now these were the "photos" that were done extremely quickly from the inexpensive home planning CAD software, "3D Home Architect"

(Click for much larger image)

This is the set of plans as drawn in the 3D home Architect.  the software then lets you look in 3D at any angle in the plans.  All of the below images were created automatically on the fly using this feature.  How cool is that!

Atlantis website copyright Jim Rutherford 2000-2016